Линия порошковой окраски мебели и дверей SPK



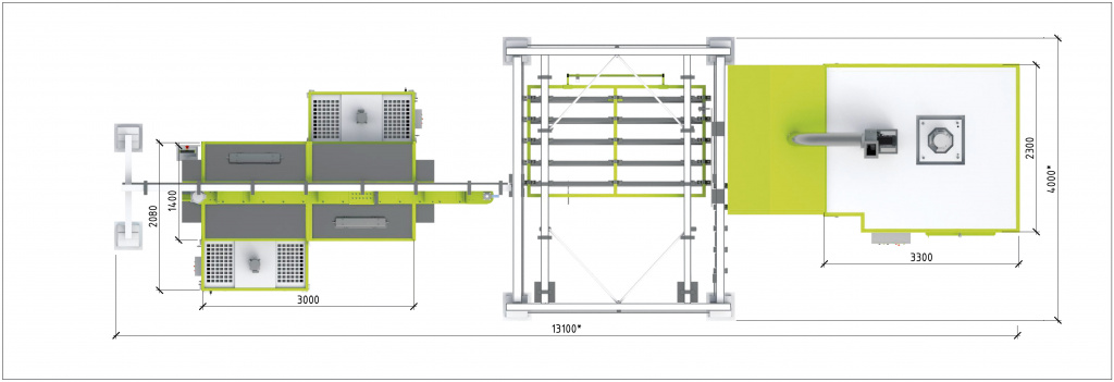
Установка, включающая в себя транспортировочную систему SPK-CS-240, двухпостовую камеру нанесения краски со сменой цвета тупикового типа Base+, проходную полимеризационную печь SPK-HTCB-3.2.4. Это позволяет проводить покраску различных деталей с помощью установки для окрашивания Sames.
Транспортировочная система
Детали, расположенные на траверсах транспортировочной системы, покрываются краской на протяжении всего времени нахождения на траверсах. После снятия готовых деталей траверсы возвращаются в исходное положение. Система снабжена одной кареткой с пятью траверсами. Общий вес окрашиваемых за один раз деталей — 480 кг, при этом на одной траверсе можно поместить деталь весом до 120 кг.
Камера для окрашивания
Покраска проводится в тупиковой камере из нержавеющей стали. При окраске не вся краска прилипает к детали: её собирает картриджные фильтры, входящие в систему рекуперации. Фильтры периодически очищаются, и краска скидывается в расположенный под ними бункер. Чистить фильтры необходимо с помощью системы пневмоудара: он входит в картриджную систему рекуперации. Собранную в бункере краску можно использовать снова.
Установка для окрашивания Sames
Установка с вибростолом оснащена удобным пистолетом, который запускается с пусковой кнопки. Меню программируется в зависимости от вида и конфигурации подлежащих окраске деталей. Также можно, предварительно заменив фильтры и баллон под краску, изменить цвет краски, затратив на процедуру смены краски 30 - 45 минут.
Полимеризационная печь
Нанесенная на детали краска запекается в печи полимеризации. В данной установке печь выполнена в проходном исполнении и имеет камеру 2700х2100х4000 мм. Электрические нагревательные элементы создают температуру до 220 градусов. Для удобства оператора имеется специальная панель управления, позволяющая задавать и регулировать параметры работы печи на основании данных измерителей ПЛК в составе печи.
Модуль Каталогов не установлен
Интересует Линия порошковой окраски мебели и дверей SPK в городе Барнауле? Мы работаем по Алтайском крае. Осуществляем доставку. Чтобы купить оборудование на нашем сайте https://barnaul.spk-group.pro, просто позвоните по телефону 8-800-500-31-68 или оставьте заявку в форме обратной связи. Наши менеджеры свяжутся с вами, уточнят цены и все возможные детали заказа.